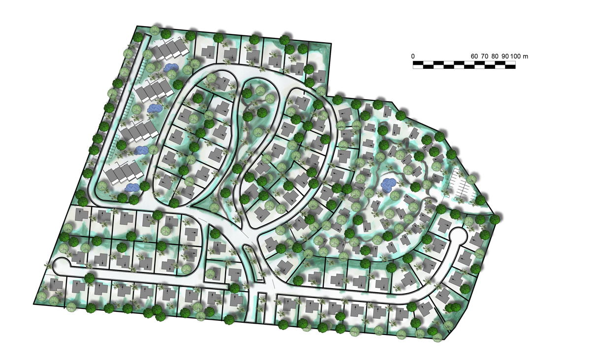
Ontwikkeling van 2 kappers en rijwoningen
Datum: 2024
Locatie: Hansweert
Werk: Inschrijving
OMSCHRIJVING
Masterplan ontwerp en voorlopig ontwerp woningen

Ontwikkeling van 2 kappers en rijwoningen
Datum: 2024
Locatie: Hansweert
Werk: Inschrijving
OMSCHRIJVING
Masterplan ontwerp en voorlopig ontwerp woningen